長野県へのお問合せ・ご相談
中古住宅
646
貸 家
36
売土地
230
貸店舗
45

長野県 移住者向け空き家・空き地ポータルサイト

信州うえだ空き家バンクでは公式InstagramとX(旧Twitter)で情報発信中!akiyabank_uedaで検索!!

貸家上田市御嶽堂1446

賃料 3.98万円
お気に入りに追加 このページを印刷
礼金 なし 敷金 1ヶ月
築年月 1962年4月 間取 8LDK
最終更新日 2025.11.27
  • 間取図

※物件位置が表示されていない場合や、実際とは異なる位置に表示されている場合があります。
正確な位置については必ず取り扱い元の市町村または不動産会社へお問い合わせください。

Googleマップを開く

所在地上田市御嶽堂1446建物名
賃料3.98万円間取8LDK
礼金なし敷金1ヶ月
構造木造保険家財保険
完成年月日1962年4月トイレ種類水洗
総階数(地上)2階下水道公共下水道
通学区上田市立丸子北小学校(3000m)
上田市立丸子北中学校(3300m)
引渡/入居日相談
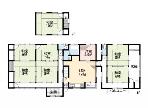
詳細間取母屋 1F:1階 LDK12帖、和室6帖×2、和室8帖×2、和室10帖、洋室4.5帖 2F:和室10帖 離れ 1F:和室×2
駐車場有 (軽自動車・小型車推奨) 台数:2台あり
設備・プロパンガス・庭・駐車場2台分・ペット相談可・空き家バンク登録物件
交通電車:しなの鉄道大屋駅 6100m 徒歩25分 自動車12分
バス:上田バス西丸子線中山バス停 300m 徒歩4分
高速道路:上信越道東部湯の丸I.C. 車21分
備考/防災情報●建物面積内訳:
<母屋>
1階 107.17㎡(32.41坪)
2階 19.87㎡(6.01坪)
地下 1階 16.24㎡(4.91坪)
<離れ>
1階 39.59㎡(11.97坪)
2階 46.37㎡(14.02坪)
<物置>
46.42㎡(14.04坪)
(専有面積として記載した229.24㎡は<母屋><離れ>の合計です)

●建築年月:月日不詳(貸主によると昭和37年4月)
●その他設備状況:電気、風呂(ガス)、上下水道、水洗トイレ(洋式)、物置あり(使用不可)
●その他施設:丸子地域自治センターまで2300m

●特記事項
・管理番号3268(UL-0296)
・直接型取引、詳細についてはお問合せください
・都市計画区域内

・敷金1ヶ月分、礼金なし、家賃保証会社利用料、家財保険料(ただし借主自身で加入し、保険証券の写しの提出でも可)

・エアコン・照明器具・家具家電等、室内にあるものは残置物扱い
・室内外の荷物撤去は借主負担(貸主負担では行わない)
・区費・町内会費等は借主にて実費負担

・前面道路および敷地内駐車スペースから、小型車もしくは軽自動車推奨

・ペット可(犬・猫可、ペット飼育に伴う条件変更なし)
・事業用利用可(事業用利用に伴う条件変更なし)
・構造上、支障ない範囲でのDIY可
・現状有姿引き渡し

・入居後、当物件の購入希望があれば売買相談可能(購入可能時期・価格等については要相談)

リフォーム歴;令和7年給湯器、TVアンテナ、玄関鍵交換済み
利用状況;空き1年(2025年11月)

経過;2025年11月新規登録


※上田市では全域において水防法に基づくハザードマップが作成されています。詳細については、「上田市災害ハザードマップ」で検索いただくか、危機管理防災課(Tel;0268-21-0123)までお問い合わせください。
※空き家バンクに登録されている物件は、多少から大幅まで何らかの補修を必要とします。
管理番号3268(UL-0296)最終更新日2025-11-27

icon_04 上田市

0268-21-0061
相談窓口 都市建設部 住宅政策課
所在地 〒386-8601 長野県上田市大手1-11-16
業務時間 08:30〜17:15 休日 土、日、祝、休、年末年始
電話 0268-21-0061 FAX
  • 補助金・支援制度あり
  • 市町村空き家バンクあり

資料請求&お問合せ

1.情報のご入力 2.入力内容のご確認 3.操作完了

*は必須項目です
お名前*  
例)信州 太郎
ふりがな*  
例)しんしゅう たろう
E-mail* 例)akiya@shinsyu.co.jp
確認用入力
ご住所
都道府県・市町村まで必須*



電話* - -
例)03-1234-1234
FAX番号 FAXで資料等をご請求する場合はご登録ください。
- -
例)03-1234-1234
お問合わせ内容*

より良いご返答のために、できるだけ具体的に入力して下さい。