長野県へのお問合せ・ご相談
中古住宅
635
貸 家
34
売土地
224
貸店舗
45

長野県 移住者向け空き家・空き地ポータルサイト

№784 安茂里の杏花台という高台に建つ物件 1階と2階で分かれる二世帯住宅 設備は多少の改修が必要

中古住宅長野市大字安茂里526-59

価格 2200万円
お気に入りに追加 このページを印刷
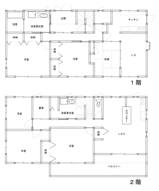
土地面積 287.99m2(公簿)/87.11坪 建物面積 197.08m2/59.61坪
築年月 1999年7月 間取 7LDK
  • 市町村空き家バンク登録物件
最終更新日 2026.01.13
  • 外観
  • 間取り
  • 玄関
  • 1階LD
  • 2階LDK
  • 2階洋室
  • 玄関
  • 1階和室
  • 1階洋室
  • 1階キッチン
  • 1階洗面
  • 1階浴室
  • 1階トイレ
  • 2階LDK
  • 2階LDK
  • 2階洋室
  • 2階洋室
  • 2階洋室
  • 2階洋室(ロフト)
  • ロフト
  • 2階洗面・シャワールーム
  • 2階トイレ
  • ベランダ
  • ベランダからの景観
  • 外観
  • 外観(カーポート)
  • 外観
  • 建物南側
  • 前面道路
  • 前面道路

※物件位置が表示されていない場合や、実際とは異なる位置に表示されている場合があります。
正確な位置については必ず取り扱い元の市町村または不動産会社へお問い合わせください。

Googleマップを開く

所在地長野市大字安茂里526-59建物名
価格2200万円税金
土地面積287.99m2(公簿)/87.11坪建物面積197.08m2/59.61坪
間取7LDK構造木造
詳細間取1階:和・洋・洋・LD・K 2階:洋・洋・洋・書斎・LDK
総階数2階完成年月1999年7月
湯権下水道公共下水道
通学区長野市立安茂里小学校(450m)
長野市立裾花中学校(1300m)
引渡/入居日相談
管理番号長野市空き家バンク 第784号物件番号448639
設備・トイレ2箇所・IHクッキングヒーター・都市ガス・上水道・下水道・電気・セントラルヒーティング・日当り良好・二世帯向き・閑静住宅街・空き家バンク登録物件
駐車場有 
交通電車:北陸新幹線長野駅 2000m 徒歩25分 自動車7分
電車:篠ノ井線安茂里駅 2300m 徒歩23分 自動車6分
高速道路:上信越道長野I.C. 車21分
土地権利所有権
備考/防災情報太陽光発電設備設置/室内写真にはAIによる処理をした物が含まれます

icon_04 長野市

026-224-7721
相談窓口 企画政策部 移住推進課 移住・定住相談デスク
所在地 〒380-8512 長野県長野市鶴賀緑町1613
業務時間 08:30〜17:15 休日 土、日、祝、年末年始
電話 026-224-7721 FAX 026-224-5103
  • 補助金・支援制度あり
  • 市町村空き家バンクあり

資料請求&お問合せ

1.情報のご入力 2.入力内容のご確認 3.操作完了

*は必須項目です
お名前*  
例)信州 太郎
ふりがな*  
例)しんしゅう たろう
E-mail* 例)akiya@shinsyu.co.jp
確認用入力
ご住所
都道府県・市町村まで必須*



電話* - -
例)03-1234-1234
FAX番号 FAXで資料等をご請求する場合はご登録ください。
- -
例)03-1234-1234
お問合わせ内容*

より良いご返答のために、できるだけ具体的に入力して下さい。