長野県へのお問合せ・ご相談
中古住宅
652
貸 家
33
売土地
227
貸店舗
32

長野県 移住者向け空き家・空き地ポータルサイト

中古住宅飯山市南町

価格 450万円
お気に入りに追加 このページを印刷
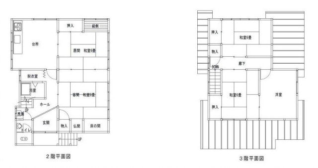
土地面積 119m2(公簿)/35.99坪 建物面積 95.74m2/28.96坪
築年月 1982年 間取 4LDK
  • 市町村空き家バンク登録物件
  • 生活が便利
  • 山が見える
  • 山が近い
  • 補助金・支援制度あり
最終更新日 2025.11.26
補助金・支援制度
補助金・支援制度については利用が可能か、 必ず市町村へご確認ください
家を購入する・改修する 飯山市移住・定住支援住宅建設促進事業(中古住宅取得の場合)
中古住宅を取得する場合、購入費用および改修費用の1/2以内の額、上限80万円を補助(住宅取得年度に夫婦のいずれかが40 歳未満又は20 歳未満の子どもと同居する夫婦の場合)。

ただし、
(1)市外から転入しようとする方
(2)市内へ転入してから5年以内でかつ現在、賃貸住宅に居住している方

上記(1)又は(2)のどちらかの要件が満たされ、定住を目的として中古住宅を取得された方であること。

※他にも対象となる要件がありますので、まずはご相談ください。

市町村のホームページで詳しく確認
受付期間:期間の定めなし

※物件位置が表示されていない場合や、実際とは異なる位置に表示されている場合があります。
正確な位置については必ず取り扱い元の市町村または不動産会社へお問い合わせください。

Googleマップを開く


所在地飯山市南町建物名
価格450万円税金
土地面積119m2(公簿)/35.99坪建物面積95.74m2/28.96坪
間取4LDK構造木造
詳細間取
総階数完成年月1982年
湯権下水道公共下水道
通学区飯山市立飯山小学校(1100m)
飯山市立城南中学校(2100m)
引渡/入居日相談
管理番号A171物件番号381485
設備
駐車場有 
交通電車:北陸新幹線飯山駅 400m 徒歩5分
電車:飯山線飯山駅 400m 徒歩5分
高速道路:上信越道豊田飯山I.C. 車8分
土地権利
備考/防災情報下記の内容につきましてはお答えいたしかねます。ご理解のほど、よろしくお願いいたします。
・空き家バンク物件の所在地や住所(番地)に関するお問い合わせ(※非公開のため)
・ご本人以外の方(代理人)からのお問い合わせ

icon_04 飯山市

0269-67-0740
相談窓口 移住定住推進課 移住定住係
所在地 〒389-2292 長野県飯山市飯山1110-1
業務時間 08:30〜17:15 休日 土、日、祝、定休日
電話 0269-67-0740 FAX 0269-62-6221
  • 補助金・支援制度あり
  • 市町村空き家バンクあり

資料請求&お問合せ

1.情報のご入力 2.入力内容のご確認 3.操作完了

*は必須項目です
お名前*  
例)信州 太郎
ふりがな*  
例)しんしゅう たろう
E-mail* 例)akiya@shinsyu.co.jp
確認用入力
ご住所
都道府県・市町村まで必須*



電話* - -
例)03-1234-1234
FAX番号 FAXで資料等をご請求する場合はご登録ください。
- -
例)03-1234-1234
お問合わせ内容*

より良いご返答のために、できるだけ具体的に入力して下さい。