長野県へのお問合せ・ご相談
中古住宅
645
貸 家
36
売土地
231
貸店舗
46

長野県 移住者向け空き家・空き地ポータルサイト

中古住宅茅野市米沢北大塩4088

価格 2500万円
お気に入りに追加 このページを印刷
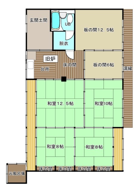
土地面積 934.88m2(公簿)/282.8坪 建物面積 301.8m2/91.29坪
築年月 間取 9DK
  • 市町村空き家バンク登録物件
  • 古民家風
最終更新日 2025.10.28

※物件位置が表示されていない場合や、実際とは異なる位置に表示されている場合があります。
正確な位置については必ず取り扱い元の市町村または不動産会社へお問い合わせください。

Googleマップを開く

所在地茅野市米沢北大塩4088建物名
価格2500万円税金
土地面積934.88m2(公簿)/282.8坪建物面積301.8m2/91.29坪
間取9DK構造木造
詳細間取
総階数2階完成年月
湯権下水道公共下水道
通学区茅野市立米沢小学校(450m)
茅野市立永明中学校(6000m)
引渡/入居日相談
管理番号141物件番号432631
設備
駐車場有 
交通電車:中央本線茅野駅 6200m 自動車14分
土地権利所有権
備考/防災情報:現況引き渡し。
:敷地東側家庭菜園スペースあり。(農地転用(3条)が必要)
:敷地西側に土蔵有。
:屋根・上下水道引き込み、電気・ガス工事済。
:リフォーム用資材(システムキッチン・断熱 材・園芸資材各種含。
取引態様一般媒介手数料

icon_04 (株)篠原不動産

0266-73-1900
所在地 〒391-0211 長野県茅野市湖東8576-1
免許番号 長野県知事免許(9)第3190号
業務時間 09:00〜18:00 休日 日曜・祝日・当社指定日(年末年始など) ※事前連絡で休日営業いたします
電話 0266-73-1900 FAX 0266-72-3103

資料請求&お問合せ

1.情報のご入力 2.入力内容のご確認 3.操作完了

*は必須項目です
お名前*  
例)信州 太郎
ふりがな*  
例)しんしゅう たろう
E-mail* 例)akiya@shinsyu.co.jp
確認用入力
ご住所
都道府県・市町村まで必須*



電話* - -
例)03-1234-1234
FAX番号 FAXで資料等をご請求する場合はご登録ください。
- -
例)03-1234-1234
お問合わせ内容*

より良いご返答のために、できるだけ具体的に入力して下さい。