長野県へのお問合せ・ご相談
中古住宅
622
貸 家
30
売土地
217
貸店舗
45

長野県 移住者向け空き家・空き地ポータルサイト

テナントの業種により改装は相談となります。

貸店舗岡谷市本町4丁目6番5号

賃料 25万円
お気に入りに追加 このページを印刷
礼金 なし 敷金 1ヶ月
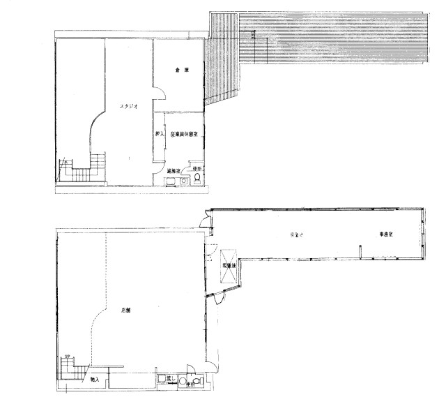
築年月 1996年 間取
最終更新日 2026.03.31

※物件位置が表示されていない場合や、実際とは異なる位置に表示されている場合があります。
正確な位置については必ず取り扱い元の市町村または不動産会社へお問い合わせください。

Googleマップを開く

所在地岡谷市本町4丁目6番5号建物名サカニシビル
賃料25万円税金
礼金なし敷金1ヶ月
保証金権利金等なし共益費
貸階数総階数(地上)2階
構造鉄骨造完成年月日1996年
専有面積563.88m2/170.57坪引渡/入居日相談
駐車場有 
設備・トイレ・収納スペース
交通電車:中央本線岡谷駅 1000m 徒歩13分 自動車5分
高速道路:長野道岡谷I.C. 車8分
備考/防災情報現在はスケルトンに近い状態となっています。
管理番号取引態様媒介
最終更新日2026-03-31物件番号449497

icon_04 岡谷不動産商事(有)

0266-22-3296
所在地 〒394-0035 長野県岡谷市天竜町3-12-24
免許番号 長野県知事免許(17)第75号
業務時間 09:00〜17:00 休日 日曜祝日
電話 0266-22-3296 FAX 0266-24-0997

資料請求&お問合せ

1.情報のご入力 2.入力内容のご確認 3.操作完了

*は必須項目です
お名前*  
例)信州 太郎
ふりがな*  
例)しんしゅう たろう
E-mail* 例)akiya@shinsyu.co.jp
確認用入力
ご住所
都道府県・市町村まで必須*



電話* - -
例)03-1234-1234
FAX番号 FAXで資料等をご請求する場合はご登録ください。
- -
例)03-1234-1234
お問合わせ内容*

より良いご返答のために、できるだけ具体的に入力して下さい。