長野県へのお問合せ・ご相談
中古住宅
621
貸 家
30
売土地
217
貸店舗
45

長野県 移住者向け空き家・空き地ポータルサイト

中古住宅NEW安曇野市穂高有明7348番3

価格 800万円
お気に入りに追加 このページを印刷
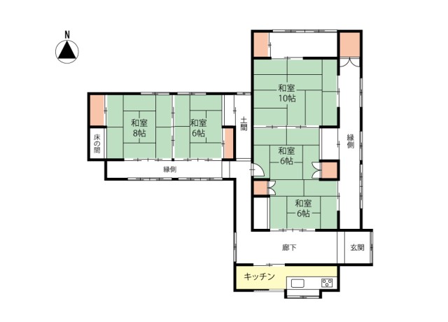
土地面積 843.43m2(公簿)/255.13坪 建物面積 128.29m2/38.8坪
築年月 間取 4K
  • 市町村空き家バンク登録物件
  • 週末暮らし物件
  • 古民家風
  • 山が見える
最終更新日 2026.04.15
有明山を望む安曇野らしい立地
有明山を望む安曇野らしい立地
  • 有明山を望む安曇野らしい立地
  • 北側の眺望
  • 西側道路接道
  • 北側接道
  • 建物外観
  • 建物外観
  • 古民家部分の座敷
  • 北西側の縁側
  • 昭和50年代の増築部分
  • 下上座敷~縁側
  • 建物外観
  • 玄関~廊下
  • 地下部分
  • 台所

※物件位置が表示されていない場合や、実際とは異なる位置に表示されている場合があります。
正確な位置については必ず取り扱い元の市町村または不動産会社へお問い合わせください。

Googleマップを開く

所在地安曇野市穂高有明7348番3建物名
価格800万円税金
土地面積843.43m2(公簿)/255.13坪建物面積128.29m2/38.8坪
間取4K構造木造
詳細間取
総階数1階完成年月
湯権下水道個別浄化
通学区引渡/入居日相談
管理番号物件番号451975
設備・システムキッチン・浄化槽・地下室・田舎リゾート向き
駐車場有 
交通電車:大糸線安曇追分駅 3900m
土地権利所有権
備考/防災情報別途72㎡の農地は売主の費用負担で宅地となり、今回の売買対象となる予定です。建物内にはトイレ、お風呂、洗面所がありません。
水廻りを含めてリフォームが必須となります。
取引態様一般媒介手数料

icon_04 山共建設(株)

0263-77-3161
所在地 〒399-8102 長野県安曇野市三郷温3350
免許番号 長野県知事免許(1)第5678号
業務時間 08:00〜17:00 休日
電話 0263-77-3161 FAX 0263-77-3164

資料請求&お問合せ

1.情報のご入力 2.入力内容のご確認 3.操作完了

*は必須項目です
お名前*  
例)信州 太郎
ふりがな*  
例)しんしゅう たろう
E-mail* 例)akiya@shinsyu.co.jp
確認用入力
ご住所
都道府県・市町村まで必須*



電話* - -
例)03-1234-1234
FAX番号 FAXで資料等をご請求する場合はご登録ください。
- -
例)03-1234-1234
お問合わせ内容*

より良いご返答のために、できるだけ具体的に入力して下さい。