長野県へのお問合せ・ご相談
中古住宅
627
貸 家
29
売土地
218
貸店舗
44

長野県 移住者向け空き家・空き地ポータルサイト

検索結果 ▶ 全 6 件 現在1〜50件表示

中古住宅

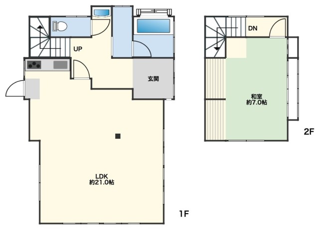
NEW松本市筑摩2丁目

housesearch_img_01
housesearch_img_02
housesearch_img_03

土地約49坪・建物約22坪★大型1LDK★LDKは約21帖★カースペース2台駐車可

価格 1500 万円
土地面積 165m2(公簿)/49.91坪 建物面積 74.66m2/22.58坪
築年月 1971年6月 間取 1LDK
housesearch_btn_01 最終更新日
2026.04.13
▶詳しく見る

中古住宅

NEW東御市加沢

housesearch_img_01
housesearch_img_02
housesearch_img_03

◆しなの鉄道線「滋野」駅まで車で4分の立地 ◆階段の昇り降りのない平屋の一戸建て ◆LDKは約17帖とゆとりのある広さ ◆リビングを見渡しながら家事のできる対面キッチン ◆全居室収納付きで室内スッキリ ◆水回り新規交換済みのため気持ちよくご利用いただけます ◆カースペースは車種にもよりますがお車4台駐車可能

価格 1998 万円
土地面積 345.64m2(公簿)/104.55坪 建物面積 107.64m2/32.56坪
築年月 1985年9月 間取 4LDK
housesearch_btn_01 最終更新日
2026.04.17
▶詳しく見る

中古住宅

NEW長野市大字高田

housesearch_img_01
housesearch_img_02
housesearch_img_03

◆南向きで日中の光を取り込みやすく、明るさを感じやすいお住まい ◆道路から奥まった配置で外からの視線が入りにくい旗竿地 ◆室内はリフォーム後のお引渡しで、そのまま使いやすい状態です ◆敷地内にカースペース(2台)を確保しています ◆二面採光のリビングで通風にも配慮されたつくりです ◆コンビニまで徒歩約5分で日常の買い物に利用しやすい立地 ◆各居室に収納を備えた洋室で整理しやすい間取り本物件敷地内には中部電力所有の電柱1本が存し、年間1500円の敷地使用料が所有者に支払われております。告知事項有り 長野市景観計画

価格 2198 万円
土地面積 197.77m2(公簿)/59.82坪 建物面積 75.35m2/22.79坪
築年月 1978年3月 間取 3LDK
housesearch_btn_01 最終更新日
2026.04.17
▶詳しく見る

中古住宅

NEW上田市岩下

housesearch_img_01
housesearch_img_02
housesearch_img_03

◆明るく暖かい陽射しが期待できる南西向き ◆全居室収納付きでスペースもすっきり ◆リビング約21帖で家族が集まりやすい広さがあります ◆全室6帖以上を確保したゆとりある居住空間です ◆敷地面積約108坪で庭や外まわりにもゆとりあり ◆WIC付きで衣類や季節物をまとめて収納できます本物件敷地内にはNTT東日本所有の支柱1本が存します。それに対して年間1500円の敷地使用料が所有者に支払われております。ガス貸与契約有り。都市計画道路有り 公有地拡大推進法 上田市景観計画

価格 2298 万円
土地面積 360.16m2(公簿)/108.94坪 建物面積 161.7m2/48.91坪
築年月 1964年2月 間取 5SLDK
housesearch_btn_01 最終更新日
2026.04.17
▶詳しく見る

中古住宅

NEW松本市横田4丁目

housesearch_img_01
housesearch_img_02
housesearch_img_03

◆2026年1月内装リフォーム完了 ◆来客時重宝なカースペース駐車2台 ◆全居室6帖以上とゆとりの4SLDK ◆家族団らんに広々17帖超えLDK ◆スイッチ一つでお湯が沸きます ◆清潔な温水洗浄便座のトイレは各階設置建物面積内車庫部分約14.8m2含

価格 2698 万円
土地面積 175.54m2(公簿)/53.1坪 建物面積 148.5m2/44.92坪
築年月 1965年12月 間取 4SLDK
housesearch_btn_01 最終更新日
2026.04.17
▶詳しく見る

中古住宅

NEW松本市寿北6丁目

housesearch_img_01
housesearch_img_02
housesearch_img_03

◆環境に優しいオール電化住宅 ◆リビング約17帖で家具配置しやすい広さ ◆IHクッキングヒーター、食洗機きと機能的な使いやすいキッチン ◆全室収納に加えリビング収納もあり整理しやすい ◆水回りの近い家事動線で家事の負担も軽減 ◆洗面室は2WAY仕様になっており、キッチンへのアクセスも可能 ◆全居室2面採光で明るく風通し良好 ◆カースペース2台駐車可能(車種による)松本市景観計画 本物件敷地内には中部電力所有の電柱1本が存し、年間1500円の敷地使用料が所有者に支払われております。

価格 3298 万円
土地面積 192.4m2(実測)/58.2坪 建物面積 105.81m2/32坪
築年月 2025年1月 間取 4LDK
housesearch_btn_01 最終更新日
2026.04.17
▶詳しく見る
検索結果 ▶ 全 6 件 現在1〜50件表示