長野県へのお問合せ・ご相談
中古住宅
648
貸 家
30
売土地
212
貸店舗
41

長野県 移住者向け空き家・空き地ポータルサイト

自然が多い、田畑付の物件です。

中古住宅NEW伊那市富県2081番、2076番ロ

価格 780万円
お気に入りに追加 このページを印刷
土地面積 591.72m2(公簿)/178.99坪 建物面積 173.25m2/52.4坪
築年月 間取 7DK
  • 市町村空き家バンク登録物件
  • 補助金・支援制度あり
最終更新日 2026.05.16
補助金・支援制度
補助金・支援制度については利用が可能か、 必ず市町村へご確認ください
移住・転入 田舎暮らしモデル地域事業
伊那市では、伊那市富県新山地区、長谷溝口区、伊那西地区、手良地区を「田舎暮らしモデル地域」に指定しています。
モデル地域事業地域における移住・定住および地域活動に対して、補助金などを交付しています。

<住宅新築等補助金>
指定地域の住宅の新築または増改築のいずれかを行う事業に要する経費の10分の2以内(150万円を限度とする。)

<空き家取得等補助金>
指定地域の空き家の取得または増改築のいずれかを行う事業に要する経費の10分の2以内(150万円を限度とする。)

<定住助成金>
(1)1世帯につき 15万円
(2)中学生以下の子ども1人につき2万円を加算
(3)単身世帯または単身者にあっては7万円

市町村のホームページで詳しく確認
受付期間:期間の定めなし
出産
 出産祝金
出産祝い金は伊那市全域に拡充されました。

支給額  第1子    3万円
     第2子    5万円
     第3子    7万円 
     第4子以降  10万円

出生時に伊那市に住所があり、定住する意思が認められる方が対象です。

市町村のホームページで詳しく確認
受付期間:期間の定めなし
家を購入する・改修する
 木造住宅の耐震補強工事に対する補助
<対象建築物>
・市が派遣した耐震診断士による精密耐震診断が行われている既存木造住宅であること。
・上記精密耐震診断の結果、総合評点が1.0未満の住宅であること。
耐震補強工事後の総合評点が0.7以上かつ工事前の総合評点を上回る補強工事が行われる住宅であること。

<対象経費>
耐震補強工事に要する費用

<補助率>
対象経費の5分の4以内の額(補助限度額1,000,000円)


市町村のホームページで詳しく確認
受付期間:期間の定めなし

外観
外観
  • 外観
  • 玄関
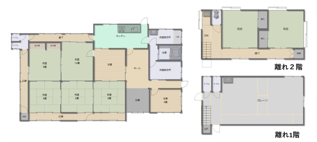
  • 間取り
  • 洗面脱衣所
  • 浴室
  • 脱衣所
  • ダイニングキッチン
  • キッチン
  • 洋室
  • 和室
  • 和室
  • 洋室
  • 和室
  • 和室
  • 和室
  • 玄関内部
  • 廊下
  • 離れ車庫
  • 離れ一階
  • 離れ階段
  • 離れ2階
  • 離れトイレ
  • 離れ2階和室2
  • 離れ2階和室

※物件位置が表示されていない場合や、実際とは異なる位置に表示されている場合があります。
正確な位置については必ず取り扱い元の市町村または不動産会社へお問い合わせください。

Googleマップを開く

所在地伊那市富県2081番、2076番ロ建物名
価格780万円税金
土地面積591.72m2(公簿)/178.99坪建物面積173.25m2/52.4坪
間取7DK構造木造
詳細間取和室10帖1部屋、和室8帖4部屋、和室6帖1部屋、洋室2部屋、
総階数1階完成年月
湯権下水道汲取
通学区伊那市立新山小学校(1600m)
伊那市立東部中学校(9100m)
引渡/入居日相談
管理番号866物件番号416943
設備・BT別室・プロパンガス・上水道・汲取・電気・日当り良好・空き家バンク登録物件
駐車場有 
交通電車:飯田線伊那市駅 12400m 自動車22分
土地権利所有権
備考/防災情報*建物の床面積は固定資産税課税明細書によるものです。
*付属土地:2077番(田)2104㎡、2078番(畑)3121㎡、2076番1(畑)697㎡、2080番1(畑)14㎡、要農地法第3条許可。
*付属建物:2階建て離れ(97.61㎡和室2部屋と車庫)、土蔵2棟有り。
*離れ浄化槽は要修理。
*固定資産税:32,700円。
*急傾斜地崩壊危険箇所、土石流危険区域、土砂災害防止法(Y土石流)、景観地区に該当しています。
取引態様専任媒介手数料

icon_04 (株)中央不動産

0120-76-0412
所在地 〒396-0015 長野県伊那市中央4810-10
免許番号 長野県知事免許(12)第2337号
業務時間 09:00〜18:00 休日 日曜・祝日は不在の時がありますので、事前にご連絡下さい。
電話 0120-76-0412 FAX 0265-72-3190

資料請求&お問合せ

1.情報のご入力 2.入力内容のご確認 3.操作完了

*は必須項目です
お名前*  
例)信州 太郎
ふりがな*  
例)しんしゅう たろう
E-mail* 例)akiya@shinsyu.co.jp
確認用入力
ご住所
都道府県・市町村まで必須*



電話* - -
例)03-1234-1234
FAX番号 FAXで資料等をご請求する場合はご登録ください。
- -
例)03-1234-1234
お問合わせ内容*

より良いご返答のために、できるだけ具体的に入力して下さい。