長野県へのお問合せ・ご相談
中古住宅
657
貸 家
32
売土地
229
貸店舗
42

長野県 移住者向け空き家・空き地ポータルサイト

検索結果 ▶ 全 7 件 現在1〜50件表示

中古住宅

茅野市玉川5167-3

housesearch_img_01
housesearch_img_02
housesearch_img_03

玉川小学校まで450m・徒歩約6分。価格改定しました。

価格 380 万円
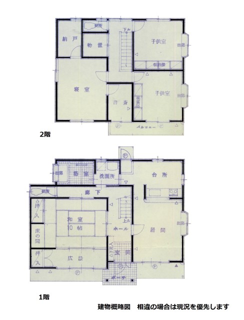
土地面積 237.93m2(公簿)/71.97坪 建物面積 113.4m2/34.3坪
築年月 1975年3月 間取 6DK
housesearch_btn_01 最終更新日
2025.09.27
▶詳しく見る

中古住宅

茅野市城山15-8

housesearch_img_01
housesearch_img_02
housesearch_img_03

JR茅野駅・ショッピングセンター・各種飲食店・コンビニ等々、車で10分圏内。

価格 480 万円
土地面積 225.33m2(公簿)/68.16坪 建物面積 137.76m2/41.67坪
築年月 1973年8月 間取 6SLDK
housesearch_btn_01 最終更新日
2025.11.01
▶詳しく見る

中古住宅

NEW茅野市宮川東向ケ丘【予約商談中】

housesearch_img_01
housesearch_img_02
housesearch_img_03

【予約商談中】2011年に大規模リフォーム済のオール電化住宅。全居室:二重(樹脂内窓)。浴室は広々1.25坪。サンルーム・カーポート・外構・外物置もあります。

価格 1380 万円
土地面積 261.71m2(公簿)/79.16坪 建物面積 86.73m2/26.23坪
築年月 1981年3月 間取 3SLDK
housesearch_btn_01 最終更新日
2025.11.13
▶詳しく見る

中古住宅

茅野市玉川小堂見

housesearch_img_01
housesearch_img_02
housesearch_img_03

リフォーム済・中古住宅。内外装・キッチン・浴室・洗面・トイレ新品交換済。

価格 1598 万円
土地面積 291.65m2(公簿)/88.22坪 建物面積 138.29m2/41.83坪
築年月 1986年9月 間取 5LDK
housesearch_btn_01 最終更新日
2025.11.01
▶詳しく見る

中古住宅

諏訪市大字中洲中金子3016

housesearch_img_01
housesearch_img_02
housesearch_img_03

返済例:月々55,892円(借入1,980万円・金利1.00%・35年返済・ボーナス返済なしの場合)

価格 1980 万円
土地面積 172m2(公簿)/52.03坪 建物面積 79.48m2/24.04坪
築年月 2018年4月 間取 2LDK
housesearch_btn_01 最終更新日
2025.10.06
▶詳しく見る

中古住宅

NEW茅野市豊平上場沢

housesearch_img_01
housesearch_img_02
housesearch_img_03

八ヶ岳連峰・蓼科山など眺望の良い立地。日当りも良好です。畑/約100坪付。別棟平屋/10坪。標高966m。移住・二拠点生活をお考えの方にもおすすめです。

価格 2180 万円
土地面積 838.58m2(公簿)/253.67坪 建物面積 144.93m2/43.84坪
築年月 1997年9月 間取 4SLDK
  • 家庭菜園・畑付き
housesearch_btn_01 最終更新日
2025.11.15
▶詳しく見る

中古住宅

茅野市ちの6025-1

housesearch_img_01
housesearch_img_02
housesearch_img_03

永明小・中学校まで1.6km(徒歩20分) ☀太陽光発電 6.08kw搭載 築2年のきれいな住宅です。

価格 3890 万円
土地面積 643.84m2(公簿)/194.76坪 建物面積 125.66m2/38.01坪
築年月 2023年2月 間取 4SLDK
housesearch_btn_01 最終更新日
2025.10.06
▶詳しく見る
検索結果 ▶ 全 7 件 現在1〜50件表示