長野県へのお問合せ・ご相談
中古住宅
651
貸 家
34
売土地
226
貸店舗
33

長野県 移住者向け空き家・空き地ポータルサイト

農地付きの物件となります(自宅から徒歩5分ほど)。農機具が収容できる納戸や土間も付いています。静かな環境で生活することができます。

中古住宅埴科郡坂城町大字南条

価格 730万円
お気に入りに追加 このページを印刷
土地面積 447.99m2(公簿)/135.51坪 建物面積 150.95m2/45.66坪
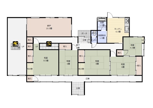
築年月 不明年 間取 8K
  • 市町村空き家バンク登録物件
  • 生活が便利
  • 家庭菜園・畑付き
  • 山が見える
  • 山が近い
  • 補助金・支援制度あり
最終更新日 2026.01.05
補助金・支援制度
補助金・支援制度については利用が可能か、 必ず市町村へご確認ください
空き家 空家情報バンク利用促進補助金交付制度
1.補助の対象になる物件
 空き家バンクに登録された物件

2.申請できる方
 ・登録された物件の所有者
 ・空き家バンクを利用し、登録物件を購入された方
 ・空き家バンクを利用し、登録物件を借りる方(貸主の同意を得られる場合のみ)

3.補助額
 ・対象経費5万円以上のものにつき、1/2以内(上限10万円)
 ※下記の場合は、上限50万円
 (1)3年以上の定住を目的に購入した場合
 (2)町内に事業所を有する事業者が、その従業員の住宅の用に供するため登録物件を購入し、改修する場合。(3年以上利用すること)

4.その他条件
・片付けの場合・・・坂城町が許可した一般廃棄物処理等の業者であること。
・リフォーム工事の場合・・・坂城町に事業所を有する法人又は住所を有する個人事業主により実施するリフォーム工事であること

※この他にも補助をうける要件がありますので、申請をお考えの場合は、ご相談ください。


市町村のホームページで詳しく確認
受付期間:期間の定めなし

外観
外観
  • 外観
  • 1F和室
  • 2F和室
  • 2F洋室
  • 脱衣所
  • 広縁
  • 階段
  • 玄関
  • 台所
  • 1F和室
  • 外観
  • 外観(北側)
  • 眺望
  • 1F間取り
  • 2F間取り

※物件位置が表示されていない場合や、実際とは異なる位置に表示されている場合があります。
正確な位置については必ず取り扱い元の市町村または不動産会社へお問い合わせください。

Googleマップを開く

所在地埴科郡坂城町大字南条建物名
価格730万円税金
土地面積447.99m2(公簿)/135.51坪建物面積150.95m2/45.66坪
間取8K構造木造
詳細間取
総階数2階完成年月不明年
湯権下水道個別浄化
通学区坂城町立南条小学校(3000m)
坂城町立坂城中学校(3000m)
引渡/入居日相談
管理番号空き家バンク物件登録番号97物件番号446482
設備・BT別室・プロパンガス・上水道・電気・インターホン・外物置・庭・日当り良好・閑静住宅街・空き家バンク登録物件
駐車場
交通電車:しなの鉄道テクノさかき駅 2000m 徒歩20分 自動車5分
高速道路:上信越道坂城I.C. 車10分
土地権利
備考/防災情報1キロ圏内に畑があり、そちらも併せての売買となります。
建物北側に谷川が流れています。

icon_04 坂城町

0268-82-3111
相談窓口 建設課管理係
所在地 〒389-0692 長野県埴科郡坂城町坂城10050
業務時間 08:30〜17:15 休日 土曜、日曜、祝日、年末年始
電話 0268-82-3111 FAX 0268-82-8307
  • 補助金・支援制度あり
  • 市町村空き家バンクあり

資料請求&お問合せ

1.情報のご入力 2.入力内容のご確認 3.操作完了

*は必須項目です
お名前*  
例)信州 太郎
ふりがな*  
例)しんしゅう たろう
E-mail* 例)akiya@shinsyu.co.jp
確認用入力
ご住所
都道府県・市町村まで必須*



電話* - -
例)03-1234-1234
FAX番号 FAXで資料等をご請求する場合はご登録ください。
- -
例)03-1234-1234
お問合わせ内容*

より良いご返答のために、できるだけ具体的に入力して下さい。