長野県へのお問合せ・ご相談
中古住宅
625
貸 家
29
売土地
218
貸店舗
45

長野県 移住者向け空き家・空き地ポータルサイト

信州うえだ空き家バンクでは公式InstagramとX(旧Twitter)で情報発信中!akiyabank_uedaで検索!!

中古住宅NEW上田市上丸子1017-3

価格 600万円
お気に入りに追加 このページを印刷
土地面積 234.88m2/71.05坪 建物面積 133.11m2/40.26坪
築年月 1919年 間取 5DK
  • 市町村空き家バンク登録物件
  • 補助金・支援制度あり
最終更新日 2026.04.10
補助金・支援制度
補助金・支援制度については利用が可能か、 必ず市町村へご確認ください
家を購入する・改修する 空き家バンク利用者引越・改修工事費用補助金
上田市空き家バンクを利用し、物件を購入した方の引越し費用及び改修工事費用を補助します。予約受付等はございません。予算が終わり次第終了しますので、ご注意ください。

市町村のホームページで詳しく確認
受付期間:期間の定めなし
空き家
 物件見学には、利用者登録が必要です。
信州うえだ空き家バンクに登録されている物件の見学には利用者登録が必要です。
上田市空き家情報バンク制度実施要項をご一読のうえ、利用者登録申込書に必要事項を記入し、オンラインまたは郵送、持参にてお申し込みください。
※利用登録申込者と契約者は同一でお願いします。



市町村のホームページで詳しく確認
受付期間:期間の定めなし

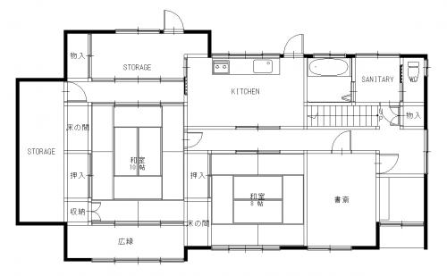
  • 間取図
  • 間取図

※物件位置が表示されていない場合や、実際とは異なる位置に表示されている場合があります。
正確な位置については必ず取り扱い元の市町村または不動産会社へお問い合わせください。

Googleマップを開く

所在地上田市上丸子1017-3建物名(丸子地域/上丸子)3263(UL-0285)
価格600万円税金
土地面積234.88m2/71.05坪建物面積133.11m2/40.26坪
間取5DK構造
詳細間取1F:DK、和室8帖、和室10帖、書斎 2F:洋室6帖×2
総階数2階完成年月1919年
湯権下水道公共下水道
通学区上田市立丸子中央小学校(450m)
上田市立丸子中学校(800m)
引渡/入居日相談
管理番号物件番号445766
設備・都市ガス・上水道・電気・庭・空き家バンク登録物件
駐車場
交通電車:しなの鉄道大屋駅 6100m 自動車14分
バス:丸子駅前バス停 150m 徒歩2分
高速道路:上信越道東部湯の丸I.C. 車21分
土地権利
備考/防災情報●建物面積内訳:1階107.19㎡(32.42坪) 2階 25.92㎡(7.84坪)
●建築年月:1919年(大正8年:課税明細書による)
●その他設備状況:風呂(ガス)、水洗トイレ(洋式)、物置あり
●その他施設:丸子地域自治センターまで450m

●特記事項
・管理番号3263(UL-0285)
・都市計画区域内(近隣商業地域)、土砂災害警戒区域内、上田市景観計画区域内
・上記建物面積は登記簿面積(昭和46年11月1日変更、増築)であり、登記と現状が異なります(未登記増築部分あり)
駐車場なし
・室内外の荷物撤去は売主負担にて行う
・現状有姿引き渡し

リフォーム歴;昭和46年11月変更、増築(登記済み)

利用状況;別荘的利用(2025年9月)

経過;2025年9月新規登録

※上田市では全域において水防法に基づくハザードマップが作成されています。詳細については、「上田市災害ハザードマップ」で検索いただくか、危機管理防災課(Tel;0268-21-0123)までお問い合わせください。
※空き家バンクに登録されている物件は、多少から大幅まで何らかの補修を必要とします。

icon_04 上田市

0268-21-0061
相談窓口 都市建設部 住宅政策課
所在地 〒386-8601 長野県上田市大手1-11-16
業務時間 08:30〜17:15 休日 土、日、祝、休、年末年始
電話 0268-21-0061 FAX
  • 補助金・支援制度あり
  • 市町村空き家バンクあり

資料請求&お問合せ

1.情報のご入力 2.入力内容のご確認 3.操作完了

*は必須項目です
お名前*  
例)信州 太郎
ふりがな*  
例)しんしゅう たろう
E-mail* 例)akiya@shinsyu.co.jp
確認用入力
ご住所
都道府県・市町村まで必須*



電話* - -
例)03-1234-1234
FAX番号 FAXで資料等をご請求する場合はご登録ください。
- -
例)03-1234-1234
お問合わせ内容*

より良いご返答のために、できるだけ具体的に入力して下さい。