長野県へのお問合せ・ご相談
中古住宅
648
貸 家
30
売土地
212
貸店舗
41

長野県 移住者向け空き家・空き地ポータルサイト

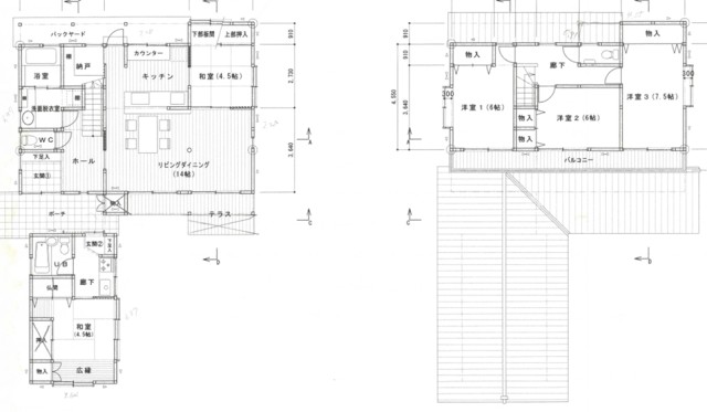
2世帯風に離れを計画、トイレ付ユニットバス、ミニキッチン付き。母屋は和室や食品庫が隣接した14帖のLDKが使い勝手が良い!玄関ホール越しに風呂、洗面、トイレ、ホールから2階へ、南面に横並びの3部屋が魅力。

中古住宅長野市篠ノ井布施五明瀬原田3036

価格 3100万円
お気に入りに追加 このページを印刷
土地面積 253.15m2(公簿)/76.57坪 建物面積 115.92m2/35.06坪
築年月 2007年3月 間取 5LDK
  • 生活が便利
  • 山が近い
  • 診断済み住宅
最終更新日 2026.05.03
icon_03住宅診断済み ▶住宅診断とは 詳細は情報提供元へご確認ください
診断実施 長野住宅診断 長野住宅診断株式会社 吉田様
診断日 2025年07月07日

所在地長野市篠ノ井布施五明瀬原田3036建物名瀬原田の家
価格3100万円税金
土地面積253.15m2(公簿)/76.57坪建物面積115.92m2/35.06坪
間取5LDK構造木造
詳細間取リビング14畳、和室4.5畳×2、洋室7.5畳、6畳×2・他に離れがあります。1K(純和風仕上げ、トイレ付ユニットバス、ミニキッチン)
総階数2階完成年月2007年3月
湯権下水道個別浄化
通学区長野市立篠ノ井西小学校
長野市立篠ノ井西中学校
引渡/入居日即可能
管理番号物件番号450413
設備
駐車場有 台数:4台あり
交通電車:篠ノ井線篠ノ井駅 徒歩20分
土地権利所有権
備考/防災情報人気の篠ノ井瀬原田土地区画整理地の住宅街の南面道路の中古住宅。買い物も便利で道幅も広く、閑静な住宅街!小学校中学校もそう遠くはなく、安心に暮らせる場所だと思います。2世帯風に離れを計画、トイレ付ユニットバスに、ミニキッチンもあります。母屋は和室や食品庫が隣接した大黒柱が特徴の14帖のLDKが使い勝手がよさそうです!玄関ホール越しに風呂、洗面、トイレ、そして2階への上り階段、2階は、南面に横並びの3部屋、とても陽当たり、景色がいい!都市ガス、上下水道、2世帯から、大家族様、どうぞ、平成19年の使用頻度の少ない住宅、ご検討ください!
当時は大家族で住もう、2世帯住宅を建てよう!として計画は始まりましたが遠くの地でそれぞれ独立して住むこともなく、知人に賃貸していた物件、いよいよ、もう住むことは無いかなと手放すことに!非常にきれいな物件です。
取引態様代理手数料不要

icon_04 (株)ライフステージ

026-217-2107
所在地 〒380-0813 長野県長野市鶴賀緑町1104-10
免許番号 長野県知事免許(3)第5349号
業務時間 09:00〜18:00 休日 水曜日・年末年始・GW・お盆休暇
電話 026-217-2107 FAX 026-217-2108

資料請求&お問合せ

1.情報のご入力 2.入力内容のご確認 3.操作完了

*は必須項目です
お名前*  
例)信州 太郎
ふりがな*  
例)しんしゅう たろう
E-mail* 例)akiya@shinsyu.co.jp
確認用入力
ご住所
都道府県・市町村まで必須*



電話* - -
例)03-1234-1234
FAX番号 FAXで資料等をご請求する場合はご登録ください。
- -
例)03-1234-1234
お問合わせ内容*

より良いご返答のために、できるだけ具体的に入力して下さい。