長野県へのお問合せ・ご相談
中古住宅
654
貸 家
29
売土地
214
貸店舗
39

長野県 移住者向け空き家・空き地ポータルサイト

‥‥‥ただ今、商談中です‥‥‥信州うえだ空き家バンクでは公式InstagramとX(旧Twitter)で情報発信中!akiyabank_uedaで検索!!

中古住宅上田市国分1762、1763-2、1793-3

価格 700万円
お気に入りに追加 このページを印刷
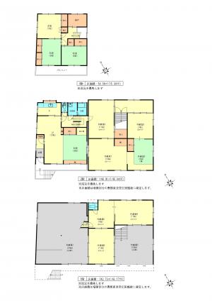
土地面積 221.56m2/67.02坪 建物面積 170.06m2/51.44坪
築年月 1982年10月 間取 4LDK
  • 市町村空き家バンク登録物件
  • 補助金・支援制度あり
最終更新日 2026.04.27
補助金・支援制度
補助金・支援制度については利用が可能か、 必ず市町村へご確認ください
家を購入する・改修する 空き家バンク利用者引越・改修工事費用補助金
上田市空き家バンクを利用し、物件を購入した方の引越し費用及び改修工事費用を補助します。予約受付等はございません。予算が終わり次第終了しますので、ご注意ください。

市町村のホームページで詳しく確認
受付期間:期間の定めなし
空き家
 物件見学には、利用者登録が必要です。
信州うえだ空き家バンクに登録されている物件の見学には利用者登録が必要です。
上田市空き家情報バンク制度実施要項をご一読のうえ、利用者登録申込書に必要事項を記入し、オンラインまたは郵送、持参にてお申し込みください。
※利用登録申込者と契約者は同一でお願いします。



市町村のホームページで詳しく確認
受付期間:期間の定めなし

  • 間取図

※物件位置が表示されていない場合や、実際とは異なる位置に表示されている場合があります。
正確な位置については必ず取り扱い元の市町村または不動産会社へお問い合わせください。

Googleマップを開く

所在地上田市国分1762、1763-2、1793-3建物名(上田地域右岸/国分)1265(UR-0199)
価格700万円税金
土地面積221.56m2/67.02坪建物面積170.06m2/51.44坪
間取4LDK構造
詳細間取
総階数3階完成年月1982年10月
湯権下水道公共下水道
通学区上田市立神川小学校(1100m)
上田市立第一中学校(1200m)
引渡/入居日相談
管理番号1265(UR-0199)物件番号451492
設備・トイレ2箇所・都市ガス・上水道・下水道・電気・駐車場2台分・空き家バンク登録物件
駐車場有 台数:2台あり
交通電車:しなの鉄道信濃国分寺駅 750m 徒歩9分 自動車15分
高速道路:上信越道上田菅平I.C. 車12分
土地権利
備考/防災情報●建物面積内訳:1階60.27㎡(18.23坪)、2階59.21㎡(17.91坪)、3階 50.58㎡(15.3坪)
●建築年月:1982年(昭和57年)10月8日
●その他設備状況:風呂、トイレ2ヶ所(母屋は水洗洋式トイレ、作業場はくみ取り和式トイレ)
●その他施設:上田市役所まで3600m、上田警察署 国分交番まで1100m
●特記事項
・管理番号1265(UR-0199)※この物件は要綱改正後に登録されたものです。
・都市計画区域内、文化財保護法指定区域内、上田市景観計画区域内
・上記土地面積の内訳は、国分1762は208.26平方メートル、国分1763-2は6.69平方メートル、国分1793-3は6.61平方メートル
・上記建物面積は登記簿面積であり、別途、未登記の作業場(2階建て、昭和53年築、90.96平方メートル/課税明細書による)あり
・未登記作業場は公共下水道未接続(接続は可能、買主負担にて宅内配管工事が必要)
・室内外の残置物撤去は売主負担にて行う
・現状有姿引渡し(売主の契約不適合責任免責)

リフォーム歴;年月日不詳 母屋トイレの便器交換

利用状況;空き5年(2026年3月)

経過;2026年3月新規登録

※上田市では全域において水防法に基づくハザードマップが作成されています。詳細については、「上田市災害ハザードマップ」で検索いただくか、危機管理防災課(Tel;0268-21-0123)までお問い合わせください。
※空き家バンクに登録されている物件は、多少から大幅まで何らかの補修を必要とします。
※空き家バンクに登録されている物件の下見、内覧時における写真、動画の撮影には、許可が必要ですので、必ず事前にご相談ください。上田市では、無断撮影、SNS等での無断公開はお断りしております。

icon_04 上田市

0268-21-0061
相談窓口 都市建設部 住宅政策課
所在地 〒386-8601 長野県上田市大手1-11-16
業務時間 08:30〜17:15 休日 土、日、祝、休、年末年始
電話 0268-21-0061 FAX
  • 補助金・支援制度あり
  • 市町村空き家バンクあり

資料請求&お問合せ

1.情報のご入力 2.入力内容のご確認 3.操作完了

*は必須項目です
お名前*  
例)信州 太郎
ふりがな*  
例)しんしゅう たろう
E-mail* 例)akiya@shinsyu.co.jp
確認用入力
ご住所
都道府県・市町村まで必須*



電話* - -
例)03-1234-1234
FAX番号 FAXで資料等をご請求する場合はご登録ください。
- -
例)03-1234-1234
お問合わせ内容*

より良いご返答のために、できるだけ具体的に入力して下さい。