長野県へのお問合せ・ご相談
中古住宅
649
貸 家
36
売土地
230
貸店舗
45

長野県 移住者向け空き家・空き地ポータルサイト

検索結果 ▶ 全 960 件 現在301〜350件表示
1234567891011121314151617181920

中古住宅

上伊那郡箕輪町大字中箕輪(No.245)

housesearch_img_01
housesearch_img_02
housesearch_img_03

価格 290 万円
土地面積 223.14m2(公簿)/67.49坪 建物面積 70.46m2/21.31坪
築年月 1966年12月 間取 5K
  • 市町村空き家バンク登録物件
  • 生活が便利
箕輪町 0265-79-3153
housesearch_btn_01 最終更新日
2025.11.26
▶詳しく見る

中古住宅

下水内郡栄村大字堺1309

housesearch_img_01
housesearch_img_02
housesearch_img_03

水回りリフォーム済みの古民家物件になります。敷地内に畑付き!

価格 290 万円
土地面積 402.09m2(公簿)/121.63坪 建物面積 204.94m2/61.99坪
築年月 1931年4月 間取 8DK
  • 市町村空き家バンク登録物件
  • 生活が便利
  • 家庭菜園・畑付き
  • 古民家風
  • 山が見える
  • 山が近い
  • 補助金・支援制度あり
栄村 0269-87-3113
housesearch_btn_01 最終更新日
2025.11.05
▶詳しく見る

中古住宅

飯田市宮ノ上4037-7

housesearch_img_01
housesearch_img_02
housesearch_img_03

宮ノ上コンパクト住宅 中2階3DK

価格 295 万円
土地面積 77.81m2(公簿)/23.53坪 建物面積 51.05m2/15.44坪
築年月 間取 3DK
housesearch_btn_01 最終更新日
2025.10.22
▶詳しく見る

住宅用土地

上伊那郡中川村大草

housesearch_img_01
housesearch_img_02
housesearch_img_03

【商談中】目の前には中央アルプスロケーションが広がる★大草の田舎風景に心癒される★開放感のある環境★

価格 296.44 万円
土地面積 490m2(公簿)/148.22坪 坪単価 2万円
建蔽率 60% 容積率 200%
  • 山が見える
housesearch_btn_01 最終更新日
2025.11.19
▶詳しく見る

中古住宅

長野市鬼無里日影3520-1

housesearch_img_01
housesearch_img_02
housesearch_img_03

№762 鬼無里(きなさ)から小川村に抜ける通り沿いに建つ物件 離れと宅地に接する畑・原野が付く

価格 298 万円
土地面積 2635.58m2(公簿)/797.26坪 建物面積
築年月 間取 2LDK
  • 家庭菜園・畑付き
長野市 026-224-7721
housesearch_btn_01 最終更新日
2025.10.02
▶詳しく見る

中古住宅

上田市上丸子1001-4含む4筆

housesearch_img_01
housesearch_img_02
housesearch_img_03

価格 300 万円
土地面積 176.94m2/53.52坪 建物面積 80.14m2/24.24坪
築年月 1970年7月 間取 4DK
  • 市町村空き家バンク登録物件
上田市 0268-21-0061
housesearch_btn_01 最終更新日
2025.09.30
▶詳しく見る

別荘用土地

諏訪郡富士見町立沢広原1番265

housesearch_img_01
housesearch_img_02
housesearch_img_03

富士見高原ゴルフコース、富士見高原スキー場のすぐ側。夏はゴルフに、冬はスキー♪リモートで仕事も♪

価格 300 万円
土地面積 644m2(公簿)/194.81坪 坪単価 1.54万円
建蔽率 20% 容積率 40%
housesearch_btn_01 最終更新日
2025.10.20
▶詳しく見る

住宅用土地

諏訪郡下諏訪町西赤砂

housesearch_img_01
housesearch_img_02
housesearch_img_03

お買い物が便利!スーパーが近く、幹線道路へすぐ出れます。

価格 300 万円
土地面積 181.62m2(実測)/54.94坪 坪単価 5.47万円
建蔽率 60% 容積率 200%
housesearch_btn_01 最終更新日
2025.10.20
▶詳しく見る

住宅用土地

上田市西内883-1、884-1、884-3、884-4、883-5、883-6

housesearch_img_01
housesearch_img_02
housesearch_img_03

価格 300 万円
土地面積 505.25m2/152.83坪 坪単価 1.97万円
建蔽率 70% 容積率 300%
  • 市町村空き家バンク登録物件
上田市 0268-21-0061
housesearch_btn_01 最終更新日
2025.10.22
▶詳しく見る

中古住宅

東御市八重原3533-282

housesearch_img_01
housesearch_img_02
housesearch_img_03

価格 300 万円
土地面積 407.02m2(公簿)/123.12坪 建物面積 85.24m2/25.78坪
築年月 1984年6月 間取 2LDK
  • 別荘風
保科不動産 0268-62-0005
housesearch_btn_01 最終更新日
2025.10.27
▶詳しく見る

中古住宅

小県郡長和町長久保536-3

housesearch_img_01
housesearch_img_02
housesearch_img_03

駐車場・物置・庭があります!さらに、保育園・小学校・郵便局・バス停・役場支所が徒歩圏内です!

価格 300 万円
土地面積 354.05m2(公簿)/107.1坪 建物面積 92.17m2/27.88坪
築年月 間取 4DK
  • 市町村空き家バンク登録物件
  • 山が見える
  • 山が近い
長和町 0268-75-2066
housesearch_btn_01 最終更新日
2025.10.27
▶詳しく見る

住宅用土地

上水内郡飯綱町大字豊野1428-6

housesearch_img_01
housesearch_img_02
housesearch_img_03

長野市境まで車で約6分、長野駅まで約30分の好立地。 造成済みの宅地です。

価格 300 万円
土地面積 490.51m2(公簿)/148.37坪 坪単価 -
建蔽率 60% 容積率 100%
  • 市町村空き家バンク登録物件
  • 山が見える
  • 山が近い
飯綱町 026-253-2512
housesearch_btn_01 最終更新日
2025.10.29
▶詳しく見る

住宅用土地

上水内郡飯綱町大字豊野1529

housesearch_img_01
housesearch_img_02
housesearch_img_03

長野市境まで車で約6分、長野駅まで約30分の好立地。 造成済みの宅地です。

価格 300 万円
土地面積 316.63m2(公簿)/95.78坪 坪単価 -
建蔽率 60% 容積率 100%
  • 市町村空き家バンク登録物件
  • 山が見える
  • 山が近い
飯綱町 026-253-2512
housesearch_btn_01 最終更新日
2025.10.29
▶詳しく見る

中古住宅

飯田市上郷飯沼3230-6

housesearch_img_01
housesearch_img_02
housesearch_img_03

駅・小中高近く!市街地近く、国道153号線へのアクセスもGOOD★飯田市人気の上郷エリア★

価格 300 万円
土地面積 134.25m2(公簿)/40.61坪 建物面積 111.28m2/33.66坪
築年月 間取 4LDK
housesearch_btn_01 最終更新日
2025.10.30
▶詳しく見る

中古住宅

塩尻市大字木曽平沢

housesearch_img_01
housesearch_img_02
housesearch_img_03

建物は昭和54年に増築されており、部屋数が多くあり大人数でも居住できる物件です。

価格 300 万円
土地面積 330.48m2(公簿)/99.97坪 建物面積 136.87m2/41.4坪
築年月 1962年 間取 6DK
  • 市町村空き家バンク登録物件
  • 山が近い
塩尻市 0263-88-8530
housesearch_btn_01 最終更新日
2025.10.30
▶詳しく見る

住宅用土地

上伊那郡箕輪町大字東箕輪320 (No32)

housesearch_img_01
housesearch_img_02
housesearch_img_03

価格 300 万円
土地面積 705m2(公簿)/213.26坪 坪単価 1.41万円
建蔽率 60% 容積率 200%
  • 市町村空き家バンク登録物件
  • 家庭菜園・畑付き
  • 山が見える
  • 山が近い
箕輪町 0265-79-3153
housesearch_btn_01 最終更新日
2025.10.30
▶詳しく見る

住宅用土地

上伊那郡箕輪町大字中箕輪6202 (No21)

housesearch_img_01
housesearch_img_02
housesearch_img_03

価格 300 万円
土地面積 582m2(公簿)/176.05坪 坪単価 1.71万円
建蔽率 60% 容積率 200%
  • 市町村空き家バンク登録物件
  • 山が見える
  • 山が近い
箕輪町 0265-79-3153
housesearch_btn_01 最終更新日
2025.10.30
▶詳しく見る

住宅用土地

上伊那郡箕輪町大字中箕輪5882(No.38)

housesearch_img_01
housesearch_img_02
housesearch_img_03

里山近くの田園地帯の一角

価格 300 万円
土地面積 551.44m2(公簿)/166.81坪 坪単価 1.8万円
建蔽率 60% 容積率 200%
  • 市町村空き家バンク登録物件
  • 山が見える
  • 山が近い
箕輪町 0265-79-3153
housesearch_btn_01 最終更新日
2025.10.30
▶詳しく見る

中古住宅

上伊那郡飯島町飯島763-4

housesearch_img_01
housesearch_img_02
housesearch_img_03

駅近の小型平家です。車両出入口確保、建物改修要。現地への出入口狭く、内見時集合場所はご相談ください。

価格 300 万円
土地面積 289m2(公簿)/87.42坪 建物面積 55.69m2/16.84坪
築年月 1968年10月 間取 3DK
housesearch_btn_01 最終更新日
2025.10.31
▶詳しく見る

中古住宅

岡谷市川岸東1丁目

housesearch_img_01
housesearch_img_02
housesearch_img_03

広い農地付き・DIY用にも最適

価格 300 万円
土地面積 1096m2(公簿)/331.54坪 建物面積 128.57m2/38.89坪
築年月 間取 3LDK
  • 家庭菜園・畑付き
  • 就農者向け
housesearch_btn_01 最終更新日
2025.10.31
▶詳しく見る

住宅用土地

上水内郡飯綱町大字豊野1694-1

housesearch_img_01
housesearch_img_02
housesearch_img_03

長野市境まで車で約6分、長野駅まで約30分の好立地。

価格 300 万円
土地面積 945.59m2(公簿)/286.04坪 坪単価 -
建蔽率 60% 容積率 100%
  • 市町村空き家バンク登録物件
  • 山が見える
  • 山が近い
飯綱町 026-253-2512
housesearch_btn_01 最終更新日
2025.11.04
▶詳しく見る

中古住宅

東御市滋野甲2103-6

housesearch_img_01
housesearch_img_02
housesearch_img_03

前面道路はやや狭く駐車場はありませんが、周りは田園地帯で日当り&風通し抜群!

価格 300 万円
土地面積 155.64m2(公簿)/47.08坪 建物面積 102.68m2/31.06坪
築年月 1992年 間取 4DK
  • 市町村空き家バンク登録物件
東御市 070-8358-0291
housesearch_btn_01 最終更新日
2025.11.11
▶詳しく見る

中古住宅

長野市中条御山里3438-2

housesearch_img_01
housesearch_img_02
housesearch_img_03

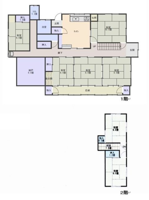
№623 中条地区の山間に建つ古民家 隣接する農地の購入も可

価格 300 万円
土地面積 1190.69m2(公簿)/360.18坪 建物面積 232.73m2/70.4坪
築年月 間取 9K
  • 市町村空き家バンク登録物件
  • 家庭菜園・畑付き
  • 古民家風
長野市 026-224-7721
housesearch_btn_01 最終更新日
2025.11.14
▶詳しく見る

中古住宅

上田市中之条

housesearch_img_01
housesearch_img_02
housesearch_img_03

現状にてのお引渡しになります。詳細につきましてはお問い合わせください。◇現状引渡し◇ 室内、残存物有

価格 300 万円
土地面積 170.15m2/51.47坪 建物面積 82.78m2/25.04坪
築年月 1975年3月 間取
housesearch_btn_01 最終更新日
2025.12.01
▶詳しく見る

中古住宅

埴科郡坂城町大字坂城

housesearch_img_01
housesearch_img_02
housesearch_img_03

中古戸建 4DK

価格 300 万円
土地面積 494.71m2/149.64坪 建物面積 122.31m2/36.99坪
築年月 間取 4DK
housesearch_btn_01 最終更新日
2025.12.01
▶詳しく見る

中古住宅

上田市御所258-9

housesearch_img_01
housesearch_img_02
housesearch_img_03

信州うえだ空き家バンクでは公式InstagramとX(旧Twitter)で情報発信中!akiyabank_uedaで検索!!

価格 300 万円
土地面積 156.52m2/47.34坪 建物面積 109.3m2/33.06坪
築年月 1975年 間取 5DK
  • 市町村空き家バンク登録物件
  • 補助金・支援制度あり
上田市 0268-21-0061
housesearch_btn_01 最終更新日
2025.09.30
▶詳しく見る

中古住宅

上田市武石下本入49-1、49-2

housesearch_img_01
housesearch_img_02
housesearch_img_03

信州うえだ空き家バンクでは公式InstagramとX(旧Twitter)で情報発信中!akiyabank_uedaで検索!!

価格 300 万円
土地面積 602.37m2/182.21坪 建物面積 114.49m2/34.63坪
築年月 1978年12月 間取 6DK
  • 市町村空き家バンク登録物件
  • 補助金・支援制度あり
上田市 0268-21-0061
housesearch_btn_01 最終更新日
2025.09.30
▶詳しく見る

中古住宅

上田市生田2024含む6筆

housesearch_img_01
housesearch_img_02
housesearch_img_03

信州うえだ空き家バンクでは公式InstagramとX(旧Twitter)で情報発信中!akiyabank_uedaで検索!!

価格 300 万円
土地面積 943.07m2/285.27坪 建物面積 244.61m2/73.99坪
築年月 間取 12DK
  • 市町村空き家バンク登録物件
  • 補助金・支援制度あり
上田市 0268-21-0061
housesearch_btn_01 最終更新日
2025.09.30
▶詳しく見る

中古住宅

木曽郡南木曽町読書東栄町

housesearch_img_01
housesearch_img_02
housesearch_img_03

【管理番号:23-1】南木曽駅から徒歩1分・崖家造り・元喫茶店店舗付き物件

価格 300 万円
土地面積 205.73m2/62.23坪 建物面積 175.07m2/52.95坪
築年月 1951年 間取 9K
  • 市町村空き家バンク登録物件
  • 生活が便利
  • 補助金・支援制度あり
南木曽町 0264-57-2001
housesearch_btn_01 最終更新日
2025.10.02
▶詳しく見る

住宅用土地

飯山市大字飯山

housesearch_img_01
housesearch_img_02
housesearch_img_03

価格 300 万円
土地面積 415.83m2(実測)/125.78坪 坪単価 2.39万円
建蔽率 40% 容積率 60%
  • 市町村空き家バンク登録物件
  • 生活が便利
  • 山が近い
  • 補助金・支援制度あり
飯山市 0269-67-0740
housesearch_btn_01 最終更新日
2025.11.26
▶詳しく見る

住宅用土地

飯山市大字常盤

housesearch_img_01
housesearch_img_02
housesearch_img_03

価格 300 万円
土地面積 1021.8m2(公簿)/309.09坪 坪単価 0.98万円
建蔽率 - 容積率 -
  • 市町村空き家バンク登録物件
  • 生活が便利
  • 家庭菜園・畑付き
  • 山が見える
  • 山が近い
  • 補助金・支援制度あり
飯山市 0269-67-0740
housesearch_btn_01 最終更新日
2025.11.26
▶詳しく見る

中古住宅

飯山市大字静間

housesearch_img_01
housesearch_img_02
housesearch_img_03

価格 300 万円
土地面積 425.23m2(公簿)/128.63坪 建物面積 172.05m2/52.04坪
築年月 1965年 間取 7K
  • 市町村空き家バンク登録物件
  • 生活が便利
  • 山が見える
  • 山が近い
  • 温泉付き・温泉地
  • 補助金・支援制度あり
飯山市 0269-67-0740
housesearch_btn_01 最終更新日
2025.11.26
▶詳しく見る

中古住宅

伊那市高遠町勝間(高195)

housesearch_img_01
housesearch_img_02
housesearch_img_03

静かな里山集落に立地する、土間の面影を残す広い玄関の二階建ての古民家物件です

価格 300 万円
土地面積 437.19m2(公簿)/132.24坪 建物面積 152.05m2/45.99坪
築年月 間取 8K
  • 補助金・支援制度あり
伊那市 0265-78-4111
housesearch_btn_01 最終更新日
2025.10.19
▶詳しく見る

中古住宅

下高井郡木島平村大字往郷(庚地区)

housesearch_img_01
housesearch_img_02
housesearch_img_03

〈内見予約は1週間前までに〉茅葺きトタン屋根の古民家物件!DIY好きな方にオススメの一軒家。

価格 300 万円
土地面積 1858.44m2(公簿)/562.17坪 建物面積 132.23m2/39.99坪
築年月 0000年 間取 4LDK
  • 市町村空き家バンク登録物件
  • 家庭菜園・畑付き
  • 古民家風
  • 山が見える
  • 山が近い
  • 温泉付き・温泉地
  • 補助金・支援制度あり
木島平村 0269-82-3111
housesearch_btn_01 最終更新日
2025.11.14
▶詳しく見る

中古住宅

上水内郡飯綱町大字赤塩5939-7

housesearch_img_01
housesearch_img_02
housesearch_img_03

【商談中】赤東地区、上赤塩に所在する物件です。

価格 300 万円
土地面積 322.69m2(公簿)/97.61坪 建物面積 92.1m2/27.86坪
築年月 1977年 間取 4DK
  • 市町村空き家バンク登録物件
  • 山が見える
  • 山が近い
  • 補助金・支援制度あり
飯綱町 026-253-2512
housesearch_btn_01 最終更新日
2025.10.10
▶詳しく見る

中古住宅

松本市大字里山辺477

housesearch_img_01
housesearch_img_02
housesearch_img_03

接道要件を満たしていないため現状では再建築不可・リフォームは可能です

価格 300 万円
土地面積 147.42m2(公簿)/44.59坪 建物面積 63.3m2/19.14坪
築年月 1962年12月 間取 4DK
  • 市町村空き家バンク登録物件
  • 生活が便利
  • 山が見える
  • 温泉付き・温泉地
  • 補助金・支援制度あり
housesearch_btn_01 最終更新日
2025.11.25
▶詳しく見る

住宅用土地

飯山市大字常郷

housesearch_img_01
housesearch_img_02
housesearch_img_03

価格 300 万円
土地面積 246.09m2(実測)/74.44坪 坪単価 4.04万円
建蔽率 - 容積率 -
  • 市町村空き家バンク登録物件
  • 生活が便利
  • 山が見える
  • 山が近い
  • 補助金・支援制度あり
飯山市 0269-67-0740
housesearch_btn_01 最終更新日
2025.11.26
▶詳しく見る

中古住宅

須坂市大字豊丘2149

housesearch_img_01
housesearch_img_02
housesearch_img_03

田舎暮らし♪ 古民家♪ DIY♪ 

価格 300 万円
土地面積 480.76m2(公簿)/145.42坪 建物面積 119m2/35.99坪
築年月 0000年00月 間取 6DK
  • 市町村空き家バンク登録物件
  • 週末暮らし物件
  • 家庭菜園・畑付き
  • 山が見える
  • 補助金・支援制度あり
housesearch_btn_01 最終更新日
2025.09.29
▶詳しく見る

中古住宅

須坂市大字豊丘2149

housesearch_img_01
housesearch_img_02
housesearch_img_03

DIYで蘇る!?腕の試しがいのある自然環境抜群の平屋物件!

価格 300 万円
土地面積 480.76m2(公簿)/145.42坪 建物面積 119m2/35.99坪
築年月 間取 6DK
  • 補助金・支援制度あり
須坂市 suzaka.landbank.info@gmail.com
housesearch_btn_01 最終更新日
2025.11.05
▶詳しく見る

中古住宅

木曽郡木曽町新開125番地75

housesearch_img_01
housesearch_img_02
housesearch_img_03

価格 300 万円
土地面積 925m2(公簿)/279.81坪 建物面積 96.88m2/29.3坪
築年月 間取 3LDK
  • 市町村空き家バンク登録物件
  • 補助金・支援制度あり
housesearch_btn_01 最終更新日
2025.10.29
▶詳しく見る

中古住宅

上高井郡高山村大字中山822番地

housesearch_img_01
housesearch_img_02
housesearch_img_03

小布施町寄りの平家物件。

価格 300 万円
土地面積 356.68m2/107.89坪 建物面積 124.33m2/37.6坪
築年月 1967年 間取 6DK
  • 市町村空き家バンク登録物件
  • 生活が便利
  • 古民家風
  • 山が見える
  • 山が近い
  • 補助金・支援制度あり
高山村 026-214-9298
housesearch_btn_01 最終更新日
2025.11.27
▶詳しく見る

住宅用土地

塩尻市大字木曽平沢

housesearch_img_01
housesearch_img_02
housesearch_img_03

【商談中】楢川支所、体育館、診療所等が、近くにあり静かな住宅地です。

価格 310 万円
土地面積 275.25m2(公簿)/83.26坪 坪単価 3.73万円
建蔽率 - 容積率 -
  • 市町村空き家バンク登録物件
  • 山が近い
塩尻市 0263-88-8530
housesearch_btn_01 最終更新日
2025.10.14
▶詳しく見る

住宅用土地

上伊那郡箕輪町大字東箕輪5115-9,10(No10)

housesearch_img_01
housesearch_img_02
housesearch_img_03

価格 310 万円
土地面積 315.27m2(公簿)/95.36坪 坪単価 3.26万円
建蔽率 60% 容積率 200%
  • 市町村空き家バンク登録物件
  • 山が見える
  • 山が近い
箕輪町 0265-79-3153
housesearch_btn_01 最終更新日
2025.10.30
▶詳しく見る

中古住宅

小県郡長和町長久保1677-2

housesearch_img_01
housesearch_img_02
housesearch_img_03

コンパクトな4DK!役場・バス停・郵便局・小学校など近く生活便利です。

価格 310 万円
土地面積 229.61m2(公簿)/69.45坪 建物面積 109.09m2/32.99坪
築年月 1960年 間取 4DK
  • 市町村空き家バンク登録物件
  • 補助金・支援制度あり
長和町 0268-75-2066
housesearch_btn_01 最終更新日
2025.10.27
▶詳しく見る

中古住宅

上田市東内136-2

housesearch_img_01
housesearch_img_02
housesearch_img_03

信州うえだ空き家バンクでは公式InstagramとX(旧Twitter)で情報発信中!akiyabank_uedaで検索!!

価格 320 万円
土地面積 422.94m2/127.93坪 建物面積 133.88m2/40.49坪
築年月 1979年 間取 6DK
  • 市町村空き家バンク登録物件
上田市 0268-21-0061
housesearch_btn_01 最終更新日
2025.09.30
▶詳しく見る

中古住宅

上伊那郡宮田村つつじが丘6116-5

housesearch_img_01
housesearch_img_02
housesearch_img_03

古民家に興味のある方

価格 320 万円
土地面積 246.95m2/74.7坪 建物面積 108.38m2/32.78坪
築年月 1970年9月 間取 4DK
housesearch_btn_01 最終更新日
2025.10.09
▶詳しく見る

中古住宅

岡谷市川岸上3丁目12番64号

housesearch_img_01
housesearch_img_02
housesearch_img_03

鶴峯公園のすぐ隣!県道沿いで交通アクセス良好、小中学校近く!

価格 320 万円
土地面積 75.57m2(公簿)/22.85坪 建物面積 103.16m2/31.2坪
築年月 間取 4K
  • 市町村空き家バンク登録物件
岡谷市 0266-23-4811 内線1372
housesearch_btn_01 最終更新日
2025.11.05
▶詳しく見る

別荘用土地

大町市平20688-13

housesearch_img_01
housesearch_img_02
housesearch_img_03

中綱湖の東側 中綱湖・簗場別荘地内

価格 320 万円
土地面積 1331m2(公簿)/402.62坪 坪単価 0.8万円
建蔽率 - 容積率 -
housesearch_btn_01 最終更新日
2025.12.01
▶詳しく見る

中古住宅

埴科郡坂城町大字中之条

housesearch_img_01
housesearch_img_02
housesearch_img_03

国道18号線から近い庭付きの古民家です。状態は良好で、現時点で大規模な修理等は必要ありません。

価格 320 万円
土地面積 343.25m2(公簿)/103.83坪 建物面積 100.82m2/30.49坪
築年月 間取 5DK
  • 市町村空き家バンク登録物件
  • 古民家風
  • 山が見える
  • 山が近い
  • 補助金・支援制度あり
坂城町 0268-82-3111
housesearch_btn_01 最終更新日
2025.11.17
▶詳しく見る

中古住宅

東筑摩郡筑北村西条

housesearch_img_01
housesearch_img_02
housesearch_img_03

旧善光寺街道沿いの平屋

価格 320 万円
土地面積 4242.91m2(公簿)/1283.48坪 建物面積 106.11m2/32.09坪
築年月 1963年 間取 4LDK
  • 市町村空き家バンク登録物件
  • 生活が便利
  • 家庭菜園・畑付き
  • 補助金・支援制度あり
筑北村 0263-66-2111
housesearch_btn_01 最終更新日
2025.09.24
▶詳しく見る
検索結果 ▶ 全 960 件 現在301〜350件表示
1234567891011121314151617181920